Ứng dụng của ray trượt vuông
Ray trượt vuông là gì
Ray trượt vuông là tên gọi do hội cơ khí Việt Nam đưa ra, còn tên tiếng anh của ray trượt vuông là "Linear guideways".
Đường dẫn tuyến tính (linear guideways) là 1 dạng chuyển động tuyến tính: sử dụng sự luân chuyển tuần hoàn của các viên bi thép giữa 1 thanh ray hình chữ nhật và 1 hộp trượt. Hệ số ma sát trên đường dẫn tuyến tính chỉ bằng 1/50 so với ray trượt thông thường và chịu tải theo mọi hướng. Với những tính năng này, một đường dẫn tuyến tính có thể đạt được độ chính xác cao và tăng cường độ chính xác khi chuyển động.
Ray trượt vuông nào tốt nhất
Tập đoàn Hiwin là nhà sản xuất và phân phối các sản phẩm "Linear Motion Control" trên toàn thế giới. Bao gồm: vít me, hệ thống dẫn đường tuyến tính, thiết bị truyền động tuyến tính, động cơ tuyến tính, trục robot, động cơ AC Servo, hệ thống đo lường định vị và vòng bi Crossed Roller.
Ray trượt vuông chỉ là một phân khúc nhỏ trong hệ thống chuyển động tuyến tính của tập đoàn này. Chính vì thế ray trượt vuông Hiwin có nhiều phiên bản đường dẫn tuyến tính và mỗi loại đều có các tùy chọn khác nhau. Tùy thuộc vào kích cỡ máy móc, yêu cầu chịu tải cao hay thấp, độ chính xác mà ta lựa chọn ra loại ray trượt vuông thích hợp nhất.
Có 9 loại ray trượt vuông khác nhau: ray trượt HG, ray trượt EG, ray trượt CG, ray trượt MG, ray trượt RG, ray trượt WE, ray trượt QH, ray trượt QE, ray trượt QW.
Tính ứng dụng của ray trượt hiwin đã bao phủ toàn bộ máy móc trong ngành công nghiệp nhẹ và nặng.
Ứng dụng của ray trượt vuông
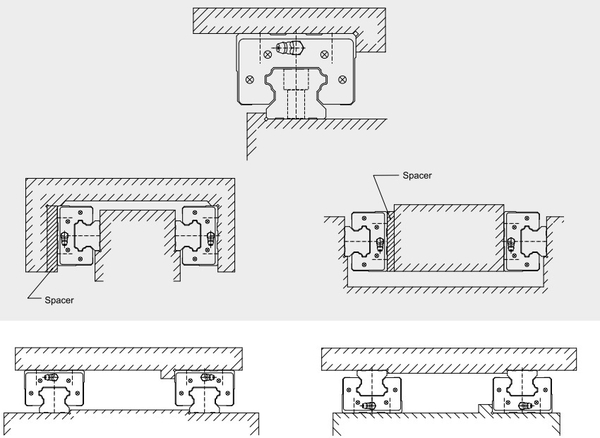
Ray trượt vuông bao gồm 2 sản phẩm liên kết với nhau: Ray trượt vuông và Con trượt vuông. Nó có thể hấp thụ lực từ bốn hướng tùy thuộc vào vị trí cần lắp đặt hay hướng chịu lực.
Thanh trượt thường được cố định chặt trên bề mặt máy, con trượt được gắn vào chi tiết máy cần chuyển động tuyến tính.
Tham khảo hình bên dưới.
+ Nếu thiết bị tải trọng nhẹ có thể dùng một đường ray trượt.
+ Nếu thiết bị có độ rung, va chạm và va đập, con trượt hoặc ray trượt phải di chuyển. Hãy sử dụng 2 đường ray trượt song song và lắp đặt theo ảnh bên trên.
Ưu điểm ray trượt vuông
+ Chịu tải nặng.
+ Có tuổi thọ cao.
+ Có tốc độ cao.
+ Có độ chính xác cao.
+ Chuyển động thẳng mượt, ma sát thấp.
+ Dễ dàng lắp đặt.
Cả Thanh Ray Trượt Vuông và Con trượt vuông đều có các kích thước sau: Ф15, Ф20, Ф25, Ф30, Ф35, Ф45.
Các size Ф55, Ф65 phải đặt hàng trước 2 tuần.
Mỗi thanh ray trượt vuông hiwin đều có chiều dài là 4m, có thể cắt ngắn theo yêu cầu của khách.
Mua ray trượt vuông ở đâu
Nếu ở Hà Nội các bạn có thể tới thẳng công ty của chúng tôi theo địa chỉ:
Vòng bi Đức Thiện
57 Lạc Nghiệp (57/343 Trần Khát Chân cũ), Hai Bà Trưng, Hà Nội.
Mọi thắc mắc quý khách vui lòng email hoặc gọi cho chúng tôi để có giá chuẩn nhất :
Email: business@vongbitot.vn
Mobile: 0939.869.866
Sự hài lòng của khách hàng là thành công của chúng tôi.
Các sản phẩm khác của công ty chúng tôi: Xem thêm
