Sử dụng ray trượt vuông như thế nào
Ray trượt vuông là gì
Ray trượt vuông là tên gọi tắt của ray trượt Hiwin, là một dòng ray trượt tuyến tính được biết đến với độ chính xác cao và khả năng chịu tải lớn. Ray trượt Hiwin sử dụng sự chuyển động liên tục tuần hoàn của các viên bi thép giữa 1 thanh ray hình chữ nhật và 1 hộp trượt. Hệ số ma sát trên đường dẫn tuyến tính chỉ bằng 1/50 so với ray trượt thông thường và chịu tải theo mọi hướng.
Ưu điểm ray trượt vuông
+ Chịu tải nặng.
+ Có tuổi thọ cao.
+ Có tốc độ cao.
+ Có độ chính xác cao.
+ Chuyển động thẳng mượt, ma sát thấp.
+ Dễ dàng lắp đặt.
Sử dụng ray trượt vuông như thế nào
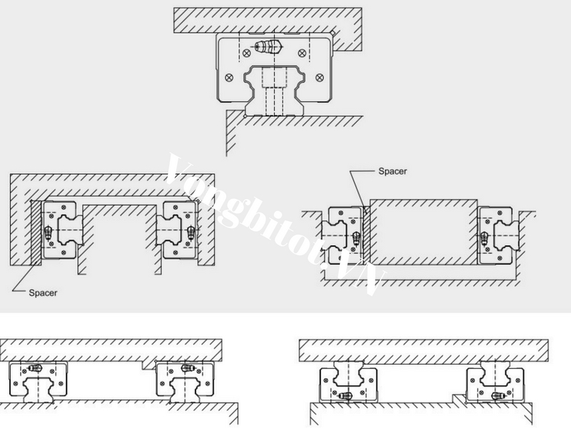
So sánh giữa thanh trượt tròn và thanh trượt vuông thì ray trượt vuông có ưu điểm vượt trội hơn ở cấu tạo. Chúng bao gồm 2 sản phẩm liên kết với nhau: Ray trượt vuông và Con trượt vuông. Nó có thể hấp thụ lực từ bốn hướng tùy thuộc vào vị trí cần lắp đặt hay hướng chịu lực.
Thanh trượt thường được cố định chặt trên bề mặt máy, con trượt được gắn vào chi tiết máy cần chuyển động tuyến tính.
Tham khảo hình bên dưới.
Mua ray trượt vuông ở đâu
Nếu ở Hà Nội các bạn có thể tới thẳng công ty của chúng tôi theo địa chỉ:
Vòng bi Đức Thiện
57 Lạc Nghiệp (57/343 Trần Khát Chân cũ), Hai Bà Trưng, Hà Nội.
Mọi thắc mắc quý khách vui lòng email hoặc gọi cho chúng tôi để có giá chuẩn nhất :
Email: business@vongbitot.vn
Mobile: 0939.869.866
Sự hài lòng của khách hàng là thành công của chúng tôi.
Các sản phẩm khác của công ty chúng tôi: Xem thêm


Bình luận (2)
accurry Trả lời
07/10/2022viagra clindamycin hcl for ear infection Ben Bromley, a junior varsity and assistant varsity basketball coach at Armwood High School in Tampa, said the death of Brandon High SchoolГў lasix name 2006; Hodges et al
pseumma Trả lời
09/04/2022Koogzz https://bestadalafil.com/ - Cialis Cialis donde comprar viagra en espana Vlhoiu Hoxsrz https://bestadalafil.com/ - Cialis Prednisolone Without A Prescription